Mack Merchandise Store
Greensboro, NC

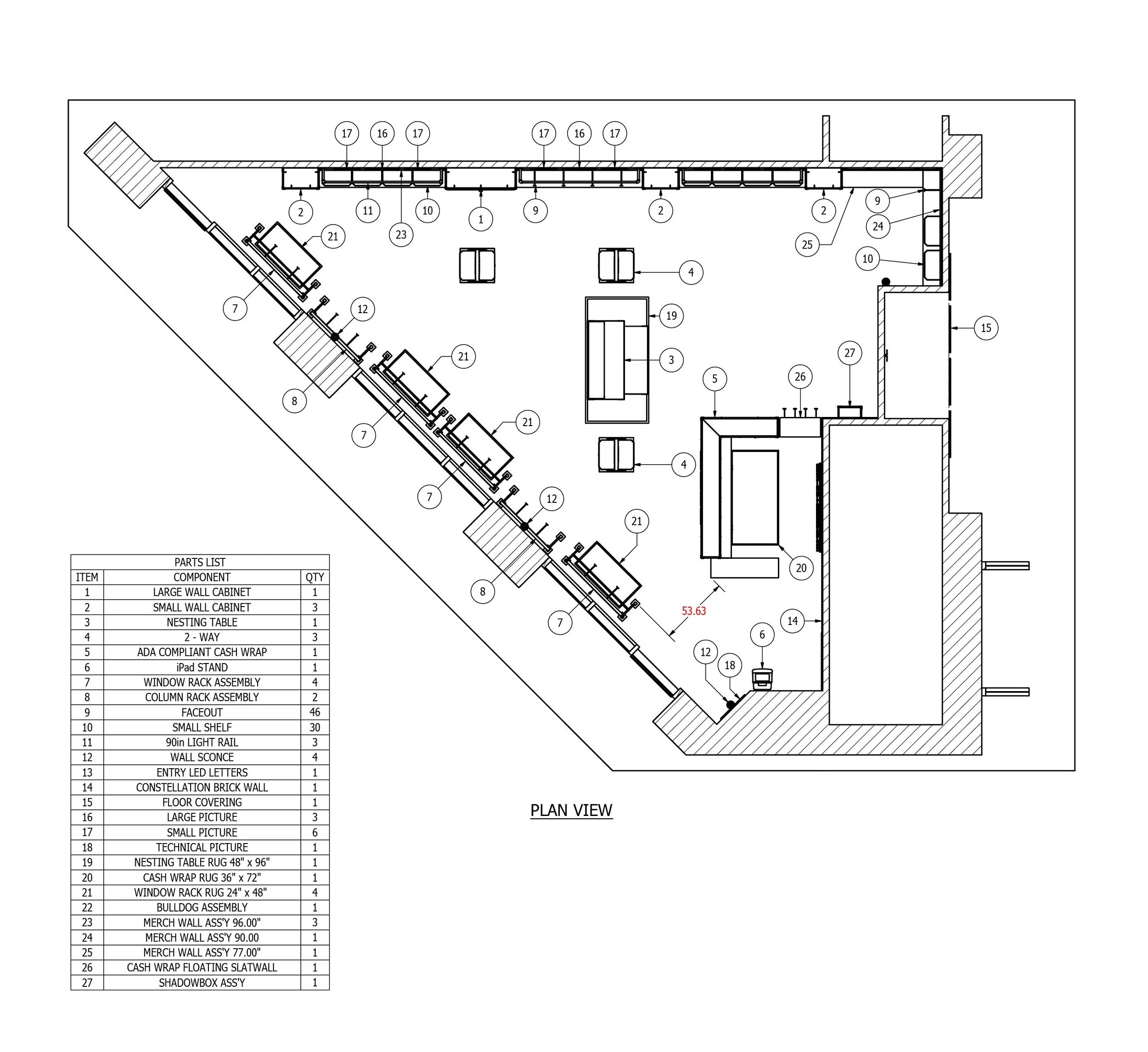
Ryan Scott partnered with Mack Trucks to transform a former meeting space into the Mack Merchandise Store. As one of three engineers collaborating closely with Mack’s Brand Management team, I helped develop a highly immersive retail environment.

The experience begins at the grand entrance, wrapped in matte black vinyl with metallic gray striping and anchored by large illuminated MACK letterforms. Inside, every detail was carefully considered - from flooring and lighting to wall finishes and faux brick. Ryan Scott’s custom display fixtures define the space, showcasing Mack’s branded apparel and collectibles in a bold, cohesive way.

The Constellation Bulldog - a creative use of pinpoint LEDs - twinkles like stars behind the custom cash wrap. Developed in collaboration with a fellow engineer at Ryan Scott, the installation adds a distinctive focal point to the space. The cash wrap integrates the client’s specified point-of-sale equipment and features an illuminated Mack Trucks logo.

Previous
Previous

Tervis Store

Next
Next

Mack - Exterior Signage